価格 |
700万円 |
||
|---|---|---|---|
間取 |
4DK |
築年月 |
1974/03(築51年) |
建物面積 |
132.18m²(39.98坪) |
土地面積 |
278.52m²(84.25坪) |
所在地 |
京都府綾部市味方町舟ノ上 |
||
交通 |
綾部市味方町 |
||
周辺環境 |
JR山陰本線「綾部駅」まで 徒歩22分 1,600m |
お電話でのお問い合わせ
物件番号:1286
お電話でお問い合わせの際は、物件番号をお伝えください。
0773-42-0823
営業時間:AM10:00 ~ PM7:00
定休日:水曜日
物件詳細DETAIL
建物構造 |
木造瓦葺平家建 |
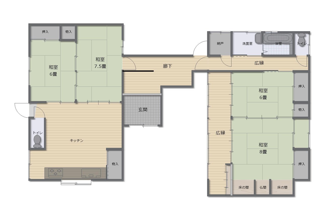
間取詳細 |
|
|---|---|---|---|
建ぺい率 |
60% |
容積率 |
200% |
地目 |
宅地 |
用途地域 |
第一種住居地域 |
取引態様 |
仲介 |
私道面積 |
- |
引渡時期 |
相談 |
土地権利 |
所有権 |
借地料 |
- |
借地期間 |
- |
セットバック |
建築確認番号 |
||
接道 |
東 公道
南 公道 |
諸費用 |
|
学区 |
|||
特色/設備 |
電気、上水道、浄化槽、LPガス、お風呂灯油ボイラー ◎車庫35㎡付き |
||
情報更新日 |
2026年02月26日 |
次回更新予定日 |
2026年02月27日 |
取引条件有効期限 |
2026年03月05日 |
※掲載されている物件データが現状と異なる場合は現状を優先します。
周辺地図MAP
有限会社 原田商店COMPANY
所在地 |
京都府綾部市駅前通70番地 |
||
|---|---|---|---|
免許番号 |
京都府知事免許(6)第10601号 |
||
会員 |
|||
電話番号 |
0773-42-0823 |
FAX番号 |
0773-42-0806 |
営業時間 |
AM10:00 ~ PM7:00 |
定休日 |
水曜日 |

